Springfield Close, Green Lane, North Duffield, Selby, YO8 5SU

Springfield Close is situated off a private drive on Green Lane near to the village green in North Duffield. Springfield Close is located in a quiet secluded area with the properties overlooking fields to the rear. North Duffield offers rural living but is ideal for access to major roads and railways.



.
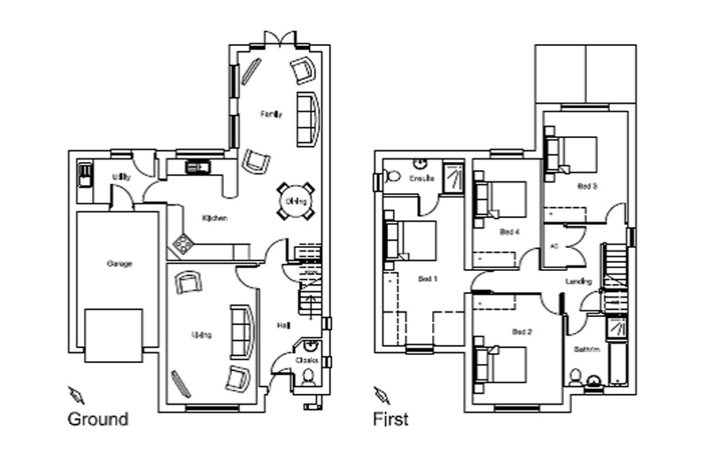
The development compromises of two 3 double bedroom detached bungalows and three 4 double bedroom family houses. Each property has an integrated single or double garage, its own drive and has a generous size garden. The properties are finished to the highest standard, with underfloor heating throughout the downstairs, gas central heating and finished with oak doors.



Property details
Plot 5 Springfield Close, North Duffield – SOLD


Plot 4 Springfield Close, North Duffield – SOLD


Plots 2 & 3 Springfield Close, North Duffield – PLOT 2 SOLD


.
Our new build properties are covered by a 10 year home owner’s warranty. The properties are finished to the highest standard. If purchased early enough the buyer has their own choice of Kitchen, Bathroom, Tiles, Fitted Wardrobes (if required), Electrical requirements and Decoration.
We are always on the lookout for future development projects. Please do not hesitate to contact use should you have land or property you feel maybe of interest to us for re-development.
For enquiries of a sales nature please contact:
R M English Estate Agent
2 Railway Street, Pocklington, York, YO42 2QZ
pocklington@rmenglish.co.uk
01759 303202